ISO22000(食品安全マネジメントシステム)の認証を取得した、きわめて衛生管理が行き届いた食肉処理施設です。

1.ISO22000の認証を取得

ISO22000の認証を取得している食肉センターは、関東では2か所しかありません。ISO22000とは、品質マネジメントシステムの国際規格であるISO9001と食品衛生管理の手法であるHACCPを内包した食品安全マネジメントシステムとして、国際標準化機構が定めた国際規格です。

ISO22000の認証を取得
  • 2008年10月ISO22000・2005 認証取得 小動物・大動物と畜解体
  • 2012年10月ISO22000・2005 認証取得 小動物・大動物内臓処理を追加
  • 2020年10月ISO22000・2018 認証更新 小動物・大動物と畜解体及び内臓

当社のISO基本方針

神奈川食肉センターは、ISO管理システムを備えた食肉処理施設として、安全・安心・新鮮なお肉の提供を通じて、上流にあるHACCP管理システムを備えた生産農場から下流の消費者までつながるフードチェーンの、一翼を担うことを目標とします。

2.コンピューター制御
による食肉処理工程

生体搬入から食肉処理工程はもちろん枝肉や部分肉の搬出まで、コンピューター制御システムを導入しています。さらに個体管理システムにより、農場・産地ごとの管理がスムーズに行われます。自動搬送システムによって、枝肉に人手が触れる工程が少なく冷蔵庫まで搬送・保管され、加えて枝肉が床上150cmの高さを通過するため、床からの跳ね水による汚染の可能性が低く衛生的な工程となっています。

個体識別&データ入力

個体識別&データ入力

床からの高さ

床からの高さ

3.高度な衛生管理体制

安全・安心・新鮮なお肉を提供するために、解体用ロボット等の導入に加えて、作業工程ごとの衛生面を確保する目的で区分されたフロアー構成により、高度な衛生管理を実現しています。更に神奈川県食肉衛生検査所の検査に加えて、自社の専門係員による入念な自主検査を行っています。

工程別フロアー

小動物(豚)

自動消毒機

自動消毒機

係留室

係留室

処理室1

処理室1

処理室2

処理室1

冷蔵庫

冷蔵庫

検査員による枝肉検査

検査員による枝肉検査

大動物(牛)

係留所

係留所

処理室

処理室

日本食肉格付協会による格付

日本食肉格付協会による格付

自主検査室での検査

自主検査室

自主検査室

神奈川県食肉衛生検査所指導のもと、枝肉や部分肉等の製品はもとより機械類やマナ板等の作業環境に至るまで、食肉処理に関するポイントでの細菌チェックおよび水質等に関する入念な自主検査を行っています。これら衛生管理の徹底に加え、何よりも安全性を優先した全自動の加工ラインから生まれる、安全・安心なお肉作りを目指しています。

4.ISO22000に基づき
区分されたフロアー構成

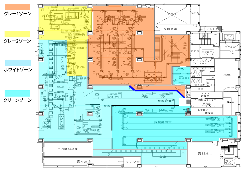
クリーンゾーンとダーティーゾーンの区別が明確で、従業員の作業区域も区分されています。それぞれの専用サニタリーを通って作業区域に入る仕組みのため、作業区域間の相互汚染防止につながります。また施設内の空気の流れは、フィルターを通して清浄した外部からの空気を、クリ-ンゾーンからダーティーゾーンへと流れるように設計されており、作業区域内は常に高度な衛生状態を保っています。

センサー感知による手洗い室

センサー感知による手洗い室

ドア開閉に連動した消毒器

ドア開閉に連動した消毒器

踏み込み消毒槽

踏み込み消毒槽

ISO22000に基づき区分された
ゾーニング図 
豚解体室・懸肉室

ゾーニング図

5.枝肉や部分肉搬出までの
衛生的な流れ

冷蔵庫はワンフロアーのため、外気が入ることが無く一定の低温度管理で鮮度を保てます。枝肉はもちろん、部分肉加工施設(カットセンター)が食肉センター内にあるため、製品化された部分肉も外気に触れることなく冷蔵庫に保管されるので、一貫して衛生状態が保たれています。更に搬出口も、搬出専用の保管庫から外気の影響を最小限に抑えるドックシェルターを活用して冷凍車に積み込まれるため、一定の温度が保たれ衛生的に販売先へ届けられています。

部分肉処理室

部分肉処理室

ドックシェルター

ドックシェルター

ドックシェルターからの積込

ドックシェルターからの積込

6.公的機関による全頭検査

隣接する神奈川県食肉衛生検査所の検査員(獣医師)により、すべての豚や牛が、生体検査や枝肉検査・内臓検査を受けます。病気などで検査に不合格となったお肉や内臓が、製品として出荷されることはありません。

神奈川県食肉衛生検査所

神奈川県食肉衛生検査所